CONTAINER BAKERY
&
CONTAINER BAKERY SHOP

CONTAINER BAKERY
PANADERÍA DE CONTENEDORES
Modular Container bakery for isolated industrial installation
Panadería modular en contenedor para instalación industrial aislada
Container Bakery Features: Modular - Containerized Units, Heating ventilating and air conditioning system, water and electrical distribution, waste water treatment and power generation, central hot water heating.
Foundation: Steel Containers can be istalled on steel skids designed for Arctic or Desert conditions as facility of Mining Camp, Oil & Gas field, Military Camp atc..
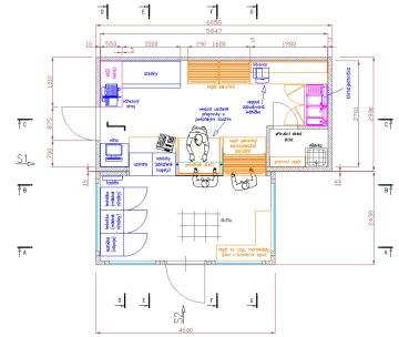
Container Bakery Rooms: Bakery, Row material storage, Staff cloakroom, Office, Container bakery shop.
Características de la panadería en contenedor: Unidades modulares - contenedorizadas, sistema de calefacción, ventilación y aire acondicionado, distribución de agua y electricidad, tratamiento de aguas residuales y generación de energía, calefacción central de agua caliente.
Cimentación: Los contenedores de acero se pueden instalar en patines de acero diseñados para condiciones árticas o desérticas como instalaciones de campamentos mineros, campos de petróleo y gas, campamentos militares, etc.
Salas de panadería en contenedores: panadería, almacenamiento de material de fila, vestuario del personal, oficina, tienda de panadería en contenedores.
Projecting | Delivery | Installation | Start up | Staff training
Proyección | Entrega | Instalación | Puesta en marcha | Formación del personal
White breads• Dark breads • Baguettes • Batone • Half baguettes • Buns • Roll • Puff pastry • and much more . . .
Panes blancos - Panes oscuros - Baguettes - Batone - Medias baguettes - Bollos - Panecillos - Hojaldre - y mucho más . . .
Container bakery for humanitarian aid
Panadería en contenedores para ayuda humanitaria
Technical specification: Mixer | Dough divider for bread | Dough divider for bread rolls | Round and long formers | Baguette machine | Bread roll machines | Proofer | Rack oven
Especificaciones técnicas: Amasadora | Divisora de masa para pan | Divisora de masa para panecillos | Formadoras redondas y largas | Máquina para baguettes | Máquinas para panecillos | Cámara de fermentación | Horno de cremallera
CONTAINER BAKERY SHOP
TIENDA DE REPOSTERÍA EN CONTENEDORES
Create a trendy bakery shop or stylish store with a Container Store...
The house is modularized...
Very variable..
You can choose the size and shape...
Cree una moderna panadería o una elegante
tienda con un Container Store...
La casa es modular...
Muy variable...
Puedes elegir el tamaño y la forma...
CONTAINER BAKERY SHOP & COFFEE
CONTENEDOR PANADERÍA & CAFÉ










